Two planning applications are up for decision next Tuesday night which will forever change the face of Caulfield East and Caulfield South. Both have officer recommendations for approval. The recommendations are further evidence of:
- Cow towing to the MRC in spite of what the 2014 Incorporated plan for Caulfield Village actually specifies. This is simply the continuation of the voting by Esakoff, Hyams, Lipshutz and Pilling going back nearly a decade and looks set to continue.
- The Caulfield South (Hawthorn Road) decision flies in the face of council’s adopted strategy from last council meeting. How the planning department can ignore its own policy statements is beyond belief.
For this post we will only concentrate on the Caulfield South application.
380 Hawthorn Road, Caulfield South
The application is for the Godfrey’s site and is asking for 7 storeys, 42 apartments, 3 shops and a car parking waiver of 26 spots. The officer recommendation is for 6 storeys and the granting of a 20 spot waiver.
We find this recommendation totally unacceptable on the following grounds:
- At last council meeting, councillors voted in the new City Plan. This included height limits for our neighbourhood and local centres as being 5 storeys. We are, 3 weeks later, being told that 6 storeys is now acceptable!
- Having decided that a 20 spot car parking waiver is ‘acceptable’, we find that council’s urban designer had other ideas. We quote from the report: Whilst Council’s Urban Designer has advised that the reorientation of the on-street parking in Olive Street would be desirable and would improve the streetscape and safety, this is considered to be unnecessary as it would reduce the number of on-street public car spaces in the area. So first you waive 20 spots and then worry about on street car parking availability. More importantly safety becomes a lesser priority than forcing the developer to provide sufficient on site parking!!!!!
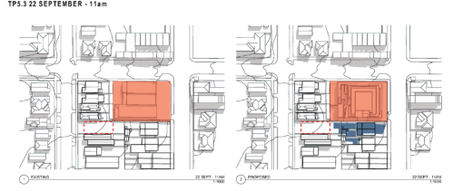
- On potential overshadowing we get this comment: It is acknowledged that overshadowing is a significant concern for residents. The most affected properties would be those at 24-34 Cedar Street. The applicant has provided hourly overshadowing diagrams for the Equinox (September 22) from 9am to 3pm showing the effects of the proposed building on adjoining properties and the surrounding area. A review of this information has been undertaken and it is considered that the overshadowing impact of the proposal would not be unreasonable as adjoining properties, whilst experiencing new overshadowing, would still have an acceptable level of solar access, from 11am to 2pm. It is acknowledged that shadows cast in Winter would be longer and affect the Cedar Street properties to a greater extent than the Equinox shadows.
Shown below is the developer’s shadow diagrams for this period of 11am to 2pm. How on earth these diagrams can then be interpreted as an ‘acceptable level of solar access’ is truly mind boggling! And with no attempt to introduce winter solstice controls into the planning scheme the impact in winter is totally ignored.

Even more disturbing is the following:
It is acknowledged that there are currently no maximum mandatory or discretionary height limits for this area. Detailed strategic planning work will be done by Council for this activity centre in the near future. It is considered that the recommended 6 storey height of the proposed building, will not prejudice that work or the orderly planning of the area.
But what will it do in terms of setting a precedent we ask, especially when surrounding applications are asking for 7 and 9 storeys?
Council has been promising further work ‘strategic work. Yet this report also contains on page 31 of the agenda, under the heading of ‘seriously entertained amendment’ the response of ‘NONE’. Does this therefore mean that:
- Caulfield South will not be part of any structure planning amendment?
- Caulfield South will not be part of any Design & Development Overlay? or
- Caulfield South will only be granted some wishy washy Urban Design Guidelines that are not MANDATORY and may not even be included in any shape or form into the planning scheme? They will simply remain as council ‘policy’. We remind readers that at last council meeting Hyams specifically used the term ‘urban design guidelines’. Hence, isn’t it time that residents got a firm answer as to council’s intentions?
There are many other comments throughout this report that should be severely questioned. Things are also missing. For example: legislation now requires ‘communal space’ for 40 or more dwellings. There is no discussion of this in the officer’s report. Even more disquieting is the constant referral to other applications that have not as yet been decided. Yet they are part of this decision making!
It will be mighty interesting to see what councillors do with this application given the potential, precedent setting decision.


February 20, 2020 at 3:19 PM
I’m sick and tired of everything being presented as acceptable by planners and councillors.No its not. Life will be a misery for all of us living close to this and this council doesn’t give a stuff.
February 20, 2020 at 4:26 PM
The councillors will rick their necks shooting up there yes hands, they all be off on sick leave staying home and collecting their pay for both sides.
February 20, 2020 at 10:16 PM
This is a disgrace! Caulfield South is a small neighbourhood centre consisting of predominantly single-storey dwellings and small businesses. How can a seven-storey building be appropriate or transition effectively in that context? It can not. Five storeys should be the mandatory height limit throughout Glen Eira. As a local resident I will be looking to councillors to vote against this ill-considered and inappropriate proposal.
February 21, 2020 at 10:01 AM
Get tall building in and the future planning is set for a mini New York. Can’t disallow seven or nine stories down the track when these already exist. Part of the strategy to build out all of Glen Eira and get bucket loads of rates in.
February 21, 2020 at 11:21 AM
Jeff, I think you’re correct on the bucket loads, but whose pockets is it going into would be the question. Glen Eira planning dept. smells a lot like Casey with its own twist.
IBAC could check bank accounts and see who are the benefactors of these doggy decisions.
Although according to a radio interview with a lawyer there was apparently nothing illegal about a developer paying a crooked councillor in Casey a bucket load of money to agist a rundown race horse.
Henceforth there would be nothing illegal with anyone storing a fridge belonging to a developer in their shed for 10 grand a year, if the fridge was in place and the agreement was noted.
February 21, 2020 at 12:42 PM
A few weeks back I remember reading that council said they would accept 7 storeys for the land opposite instead of 9 storeys. Thankfully vcat knocked this back for the time being because the developer will also be back. The incremental creep of higher and higher has got to stop with mandatory heights everywhere and these councillors have to vote that way all the time.